Ausstellungsküche

Helle Design Küche mit Insel "IL 3610" von Interliving

23.799 €
28.513 €

Abholpreis

Verkäuflich ab : 30.06.2026

Artikelnummer: 1013087-02

Ästhetik vereint mit Komfort: Ihre Traumküche im Detail

Entdecken Sie die moderne Designküche Modell 3610 von Interliving, die Eleganz und Funktionalität auf harmonische Weise vereint. In strahlendem Premiumweiß hochglänzend präsentiert sich die Küche, deren durchgängige und grifflose Fronten für ein puristisches Design stehen. Klare Linien schaffen eine zeitlose Ästhetik, während die Premiumweiß PRO Arbeitsplatte in Kombination mit der Theke in Eiche-Trüffel einen warmen Akzent setzt.

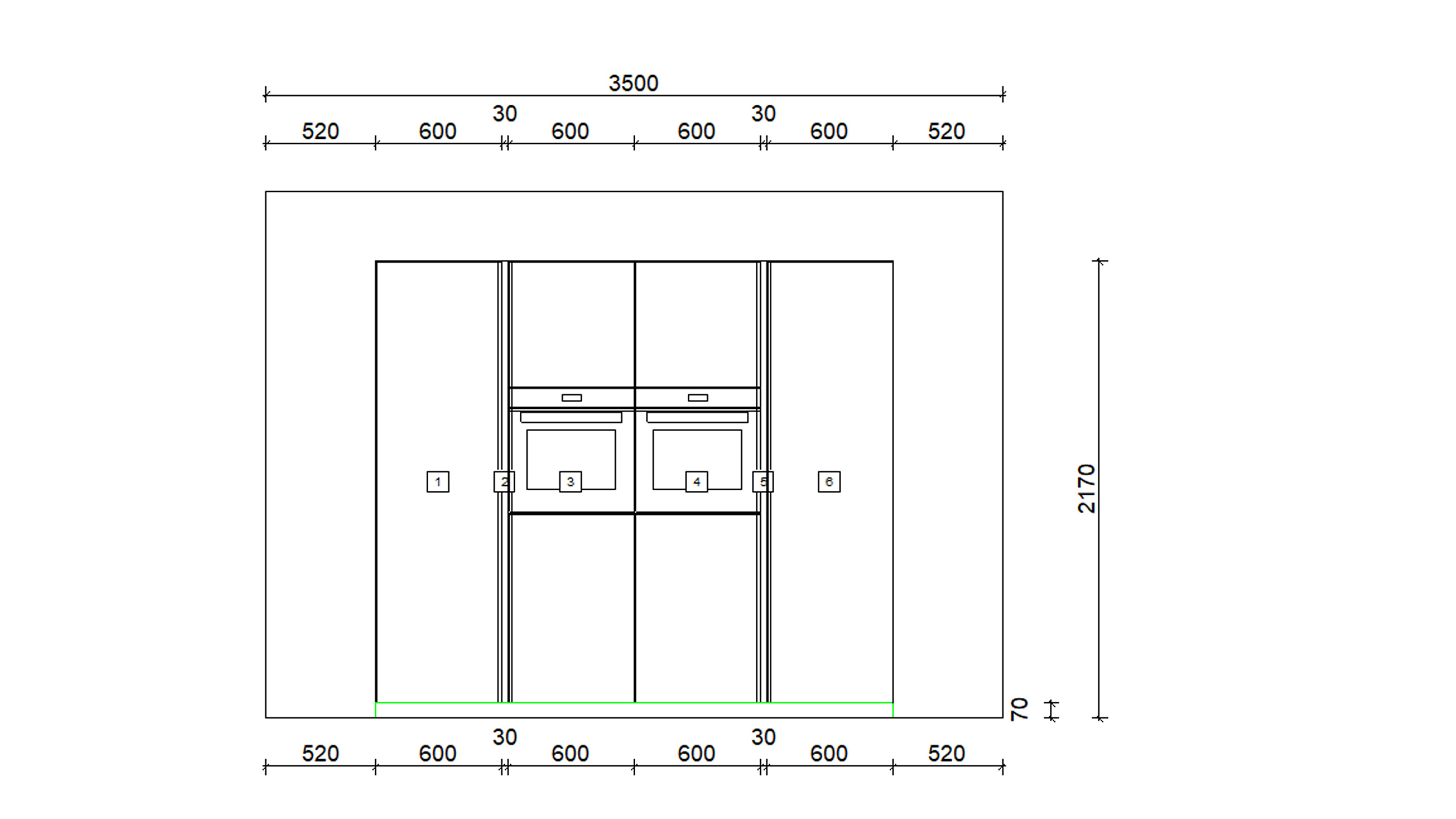
Genießen Sie den Komfort der ergonomisch gestalteten Arbeitsplatte in einer Höhe von ca. 93 cm und dem ca. 10 cm hohen Sockel, welche beide individuell anpassbar sind, um sich Ihren Bedürfnissen perfekt anzupassen. Der hochgestellte Backofen mit Mikrowelle sorgt für eine mühelose Nutzung, während die integrierte Sitzmöglichkeit ein einladendes Ambiente schafft, perfekt für entspannte Momente mit Familie und Freunden.

Perfekte Grundrisse für maximale Funktionalität

Zeile

  • Hochschränke
  • Normale Schränke: Bieten großzügigen Stauraum für Geschirr und Vorräte.
  • Auszüge inkl. Innenauszügen mit Besteckorganisation: Sorgen für Ordnung und schnellen Zugriff auf Besteck und Küchenhelfer.
  • Hochgestellter Backofen: Erleichtert das Kochen ohne großes Bücken und sorgt für eine ergonomische Nutzung.
  • Hochgestellter Backofen mit Mikrowelle: Spart Platz und bringt zwei Geräte in Reichweite.
  • Kühlschrank: Bietet frische Lebensmittel griffbereit.

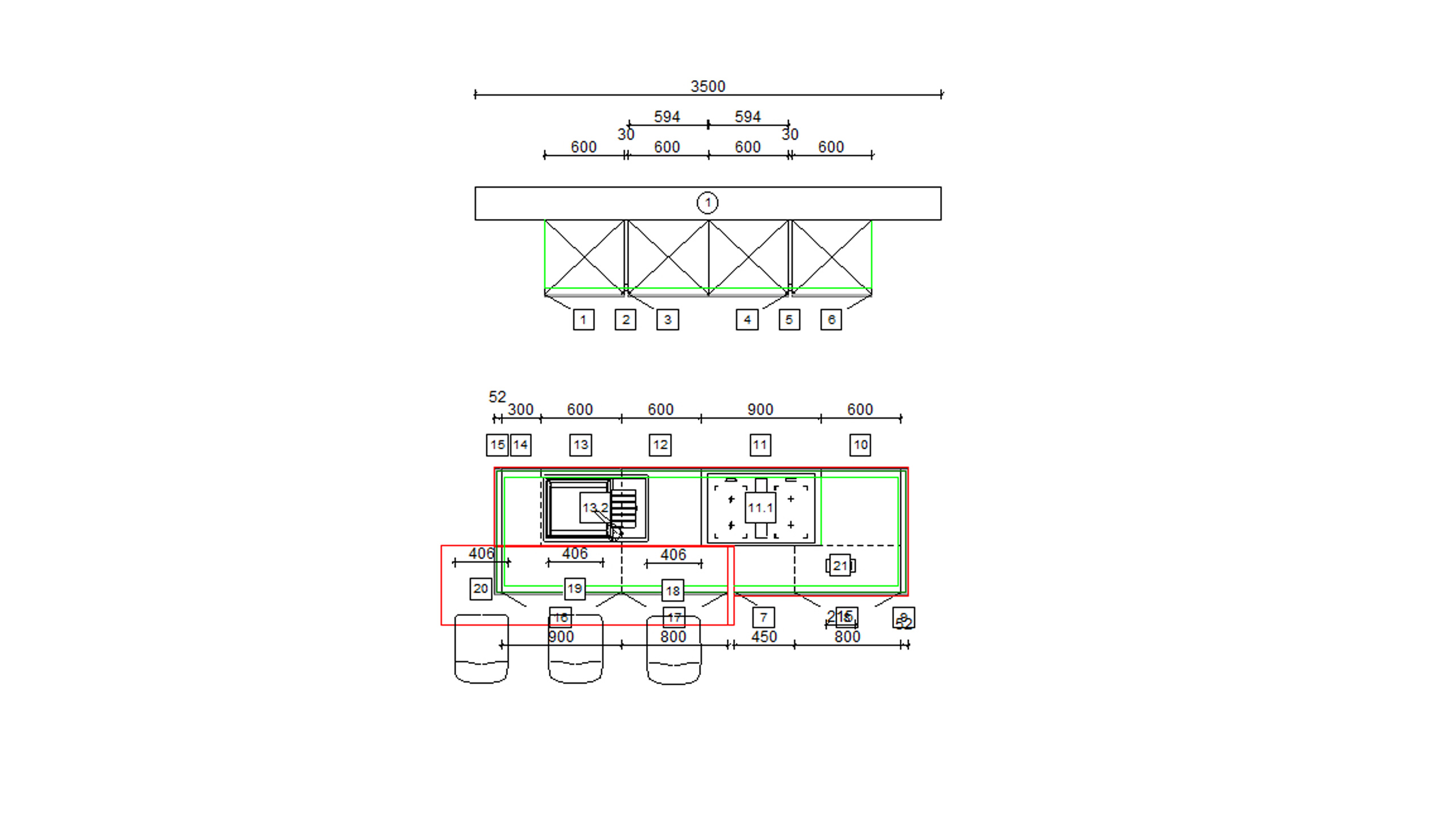
Insel

  • Unterschränke
  • Auszüge inkl. Innenauszügen mit Besteckorganisation: Maximieren die Effizienz bei der Küchenarbeit und halten alles an seinem Platz.
  • Vollintegrierter Geschirrspüler: Fügt sich harmonisch in das Design ein und ermöglicht ein schnelles Aufräumen.
  • 3-fach-Mülltrennsystem mit Ablagefläche: Fördert die Mülltrennung und bietet zusätzlich Stauraum für Küchenutensilien.
  • Apothekerschrank: Nutzt vertikalen Raum optimal für Gewürze und kleine Küchenartikel.
  • Normale Schränke: Gewähren weiteren Stauraum für Ihre Küchenutensilien.

Licht, Technik und besondere Extras für Ihre Küche

Beleuchtung

  • Griffmuldenbeleuchtung: Hebt die Griffe hervor und sorgt für zusätzliches Licht in den Schubladen, was die Handhabung erleichtert.

Besonderheiten der Küche

  • Besteckorganisation: Sorgt für eine übersichtliche und effiziente Küchenarbeit.
  • Apothekerschrank: Optimaler Stauraum für Gewürze und kleine Artikel.
  • Theke: Bietet eine einladende Sitzgelegenheit für Familie und Freunde.
  • Einbau Steckdose in der Insel: Praktisch für Küchengeräte schnelle Nutzung für E-Geräte mit einer sauberen Optik.

Geräte

  • Backofen
  • Einbaubackofen mit Mikrowelle
  • Geschirrspüler
  • Kühlschrank
  • Muldenlüfter

Gestalten Sie Ihre Traumküche! Besuchen Sie uns persönlich oder vereinbaren Sie online einen Beratungstermin. Küche planen Rheine - wir freuen uns auf Sie!

Marke: Interliving
Programm: IL 3610
Standardfarben: Holzoptik, weiß
Typ: Küche
Grundriss: Zeile + Insel
Stil: Designküchen, Familienküchen, Moderne Küchen
Sitzmöglichkeit: mit
Sitzlösung Ausführung: APL Aufsatz-Tresen
Sitzplätze: 3
Stärke APL [cm]: 1.2
Oberkante APL [cm]: 98.2
Korpushöhe [cm]: 90
Sockelhöhe [cm]: 7
Einbauart APL Kochfeld: aufliegend
Einbauart APL Spüle: aufliegend
Status Platzierung: normal
0, nix Finanzierung
Lieferung und Montage vom Profi
2 Jahre Garantie
365 Tage Tiefpreisgarantie
Ausgezeichneter Kundenservice

Fronten und Arbeitsplatten

Bild
Teil
Beschreibung
Front
IL 3610 / Nova Lack - 731 weiß hochglänzend - Echtlack
Arbeitsplatte
U22 Weiß PRO